Kdo jsme?

Jsme malá česká firma, která jde vlastní cestou a dokazuje, že s poctivostí výroby nejdál dojdete. Od roku 1991 vyrábíme termoluxusní okna a dveře z našich českých profilů. Dále dodáváme speciální profily, vodoinstalační trubky a materiál.

Ani dnes, po téměř 30 ti letech od založení společnosti, nezapomínáme na myšlenky zakladatelů, a to vyrábět poctivá, česká okna, která budou desítky let sloužit svým majitelům. Proto nehrajeme na dvojí kvalitu – ctíme, že česká okna jsou symbolem kvality a profesionální řemeslné práce. Každý náš produkt vyrábíme ve standardu TERMOLUX - v kvalitě tak, jako bychom jej vyráběli sami pro sebe, do našich domovů.

Jak poznám TERMOLUXUSNÍ okna?

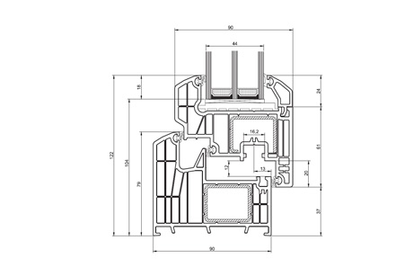
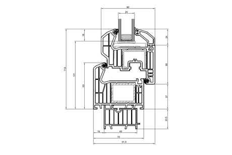
  • jsou vyrobená z českých profilů nejvyšší A třídy – pro jasný původ materiálů a vysokou pevnost oken a svarů profilů
  • jsou bez přidaných recyklátů a olova – pro dlouhodobé užívání bez negativních vlivů na Vaše zdraví
  • utěsňujeme je ručně vkládaným EPDM těsněním – pro dokonalou těsnost i v rozích oken
  • zasklíváme je hluboce zapuštěným izolačním sklem s teplými rámečky – pro omezení rosení oken
  • vyztužujeme je masivními Fe/Zn výztuhami, v rámech min. 2 mm silnými, uzavřenými – pro nadstandardní pevnost, tuhost a stabilitu oken
  • jsou okována kováním Winkhaus activPilot a okenními klikami Hoppe s bezpečnostní funkcí Secustik - pro vyšší bezpečnost Vaší rodiny a domu.

Příběh termoluxusních oken – jak to všechno začalo

1991 - 2026

1991

Historie firmy rok 1991

V roce 1991 založily spojená zemědělská družstva okresu Vsetín zcela unikátní výrobu plastových profilů pro výrobu oken, a výrobu plastových oken samotnou. S investicí cirka 100 milionů Kčs, se jednalo o jednu z nejvýznamnějších podnikatelských akcí na Valašsku.

1992

Historie firmy rok 1992

Rozběhli jsme instalované technologie do plného provozu a vyráběli své první výrobky: PVC profilový systém Triterm, plastová okna a dveře z profilů Triterm a vodoinstalační trubky a tvarovky.

Následovalo období seznamování zákazníků s výhodami, tehdy poměrně neznámých, plastových oken. Otevírali jsme nová obchodní zastoupení, vystavovali na veletrzích, jednali v zahraničí. Vyráběli jsme, montovali, rozšiřovali a doplňovali výrobu o další potřebné stroje.

1999

Historie firmy rok 1999

Zavedli certifikovaný systém jakosti podle ISO 9001.

2004

Historie firmy rok 2004

Představujeme zbrusu nový okenní profilový systém KVINTERM. Moderní, pětikomorový profil byl špičkou v profilových řadách pro výrobu oken.

2005

Doplnili jsme okenní profily KVINTERM o profily pro výrobu dveří. Ukončujeme výrobu tříkomorových profilů Triterm.

2008

Historie firmy rok 2008

Přicházíme na trh s top profilem KVINTERM 2+, který navazuje na úspěch řady KVINTERM a dává našim oknům výrazný konkurenční náskok.

2009

Inovujeme složení našich profilů a přecházíme na bezolovnatou recepturu. Profily nově nesou označení EKO PROFIL.

2011

Historie firmy rok 2016

Doplňujeme profilovou řadu KVINTERM 2+ o hnědý probarvený profil pro oboustranně kašírovaná okna. Přecházíme na trh s kováním řady Winkhaus activPilot.

2014

Stěhujeme obchodní a správní oddělení blíže k výrobě - do areálu na Hranické ulici ve Valašském Meziříčí. Zahajujeme výrobu hliníkových oken a dveří z profilů ALUPROF.um

2016

Přicházíme na trh s okny se skrytým kováním Winkhaus activPilot Select.

2017

Historie firmy rok 2011

Doplňujeme sortiment profilových systémů o profily SPACE 8. Jedná se o profily s třemi těsněními a 8 komorami, pro pasivní a nízkoenergetické domy. Nabízíme hliníkové HS portály a posuvné dveře s kováním duoPort Pas.

2018

Zavádíme novou barvu probarvených profilů – šedou. Reagujeme na požadavky moderní architektury, která často preferuje antracitové a jiné šedé odstíny oken.

2019

Jsme připraveni na změny požadavků na okna a dveře s ohledem na výstavby budov s téměř nulovou spotřebou energie (NZEB) od roku 2020. Naše výrobky můžete financovat z dotačního programu Nová zelená úsporám. Zajišťujeme dodávku a montáž venkovní stínící techniky, látkového stínění a garážových vrat. Stále vyrábíme a budeme vyrábět TERMOLUXUSNÍ OKNA.